
2019
Kitchen and Vanity Cabinet
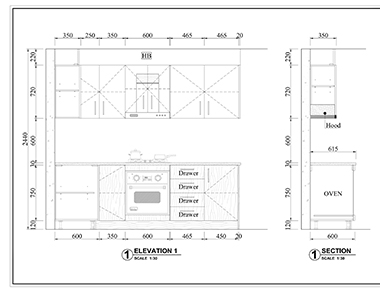
The is project is located between Brisbane and Golden Coast, Totally 100 Town Houses in 4 stages, BFP supplied the kitchen and vanity cabinets for stage 3 and 4.The kitchen is HPL finish with Light Sheme and Dark Scheme colors.

























Clients can provide us with project floor plans and their preferences for cabinet style and materials.

Our experienced design team will create preliminary shop drawings for your approval.

Based on the preliminary shop drawings, we will provide a detailed quotation.

We will revise the shop drawings until you are completely satisfied with the design.

Final shop drawings will be prepared according to the final jobsite measurement. We will revise the price accordingly and issue a Proforma invoice for payment.

Once we receive the deposit, signed-off drawings, and appliance specifications, production will commence.

We conduct thorough quality checks before shipping to ensure the highest standards are maintained.

Our team will meticulously pack the goods and arrange for safe shipping.

We are committed to providing excellent after-sales service, supporting you from the moment you receive the goods until the completion of installation.
We employ cookies to analyze website traffic and enhance your browsing experience. Data securely aggregated, privacy protected. See Privacy Policy for details.