
2023
Kök, Tvättstuga, Linneskåp
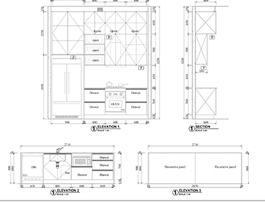
Detta projekt är ett lägenhetsprojekt, köksdesignen är enkel högblank lackerad och har subtropisk ekfinish med låsbara dörrar.

























Kunder kan förse oss med projektplaner och sina preferenser för skåpstil och material.

Vårt erfarna designteam kommer att skapa preliminära verkstadsritningar för ert godkännande.

Baserat på de preliminära verkstadsritningarna kommer vi att ge en detaljerad offert.

Vi kommer att revidera verkstadsritningarna tills du är helt nöjd med designen.

Slutgiltiga verkstadsritningar kommer att utarbetas enligt de slutliga måtten på arbetsplatsen. Vi kommer att justera priset därefter och utfärda en proformafaktura för betalning.

När vi har mottagit depositionen, godkända ritningar och apparatspecifikationer kommer produktionen att påbörjas.

Vi utför noggranna kvalitetskontroller före leverans för att säkerställa att högsta möjliga standard upprätthålls.

Vårt team kommer att packa varorna noggrant och ordna säker frakt.

Vi strävar efter att erbjuda utmärkt eftermarknadsservice och stödja dig från det ögonblick du mottager varorna tills installationen är klar.
Vi använder cookies för att analysera webbplatstrafik och förbättra din webbupplevelse. Data aggregeras säkert och skyddas av integritet. Se integritetspolicyn för mer information.