
2019
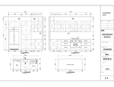
Kusina, Labahan Gabinete
Ang estilo sa pultahan niini nga proyekto espesyal kaayo. Ang taas nga gloss white lacquer nga mga pultahan nga adunay kahoy nga grain nga melamine nga mga pultahan naghimo sa kusina nga talagsaon gikan sa regular nga mga disenyo sa kusina.






















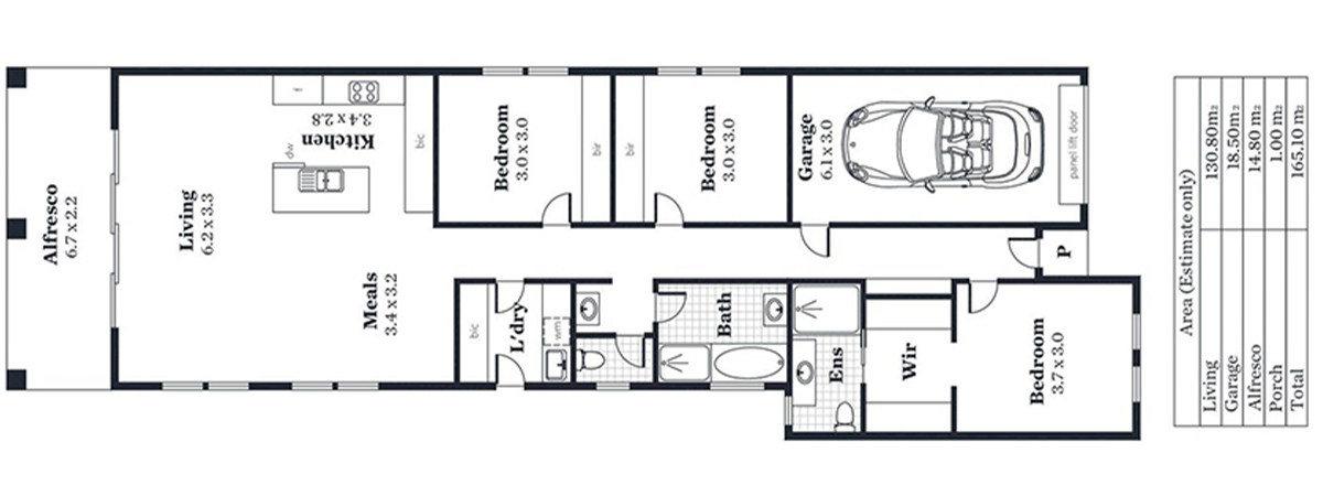
Ang mga kliyente makahatag kanamo og mga plano sa salog sa proyekto ug ang ilang mga gusto alang sa estilo sa kabinete ug mga materyales.

Ang among eksperyensiyado nga team sa disenyo maghimo ug preliminary shop drawings para sa imong pag-apruba.

Pinasukad sa pasiuna nga mga drowing sa shop, maghatag kami usa ka detalyado nga kinutlo.

Among usbon ang mga drowing sa shop hangtod nga hingpit ka nga matagbaw sa disenyo.

Ang katapusan nga mga drowing sa shop pagaandamon sumala sa katapusang pagsukod sa lugar sa trabahoan. Among usbon ang presyo sumala niana ug mag-isyu ug Proforma invoice alang sa pagbayad.

Kung madawat na namo ang deposito, gipirmahan nga mga drowing, ug mga detalye sa appliance, magsugod ang produksiyon.

Naghimo kami og hingpit nga pagsusi sa kalidad sa wala pa ipadala aron masiguro nga ang labing taas nga mga sumbanan gipadayon.

Ang among team maampingong mag-pack sa mga butang ug maghikay alang sa luwas nga pagpadala.

Kami komitido sa paghatag og maayo kaayo nga serbisyo human sa pagbaligya, pagsuporta kanimo gikan sa higayon nga imong madawat ang mga butang hangtud sa pagkompleto sa pag-instalar.
Gidamgo nimo Kini, among gidesinyo Kini.
Pag-iskedyul ug ChatGigamit namo ang cookies aron analisahon ang trapiko sa website ug mapaayo ang imong kasinatian sa pag-browse. Ang datos luwas nga gitigom, gipanalipdan ang pribasiya. Tan-awa ang Patakaran sa Pribasiya alang sa mga detalye.